
-Estaciones totales para levantamientos en campo
-Niveles y medidores láser para proyección a 80m Ver más

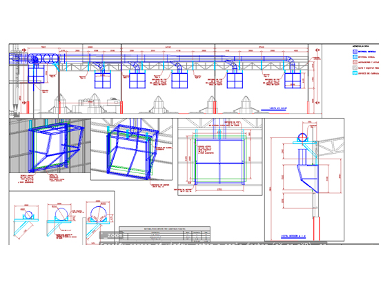
-Para soportes de equipo, ductos, ductos autosoportados
-Revisión de estructura existente para usarse como soporte Ver más

-Acero para ductos, campanas, chimeneas, soportes
-Cédulas de cableado en campo, control y fuerza Ver más

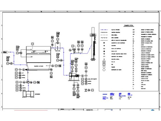
Es la representación de la configuración física del sistema de extracción / inyección con un grado de precisión preliminar donde se representa en las instalaciones Ver más

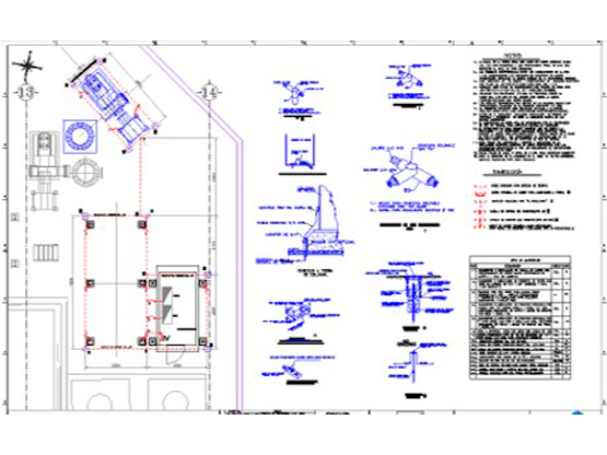
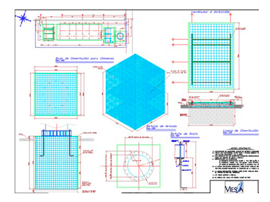
-Diseño de cimentación para colectores, Equipos de precolectores o de acondicionamiento
-Cimentación para ventiladores y chimeneas
-Cimentación para soportes especiales Ver más

-DTI (P&ID)
-Trayectorias y canalizaciones de cableados y red de comunicación.
-Cedulas de cableado para instrumentosVer más
La ventilación de procesos industriales, maquinaria y equipamiento permite controlar el calor, la toxicidad de los ambientes o la explosividad potencial de los mismos, garantizando en la mayoría de los casos la salud de los operarios y condiciones óptimas en espacios de trabajo.